Zur Eigennutzung, oder zur Vermietung in der Altstadt von Kirchhain.
VB 269.000 €
Das historische und denkmalgeschützte Gebäude befindet sich in der Altstadt von Kirchhain, ganz in der Nähe von Kirche, Marktplatz und Fußgängerzone.
Das verputzte Fachwerkhaus wurde durch Um- und Ausbauten, sowie einem späteren Anbau erweitert und bietet heute rund 200 m² Wohnfläche, verteilt auf zwei Etagen.
Sowohl Eigennutzung z.B. für eine größere Familie, als auch Vermietung an ein, zwei, oder mehr Parteien sind hier denkbar.
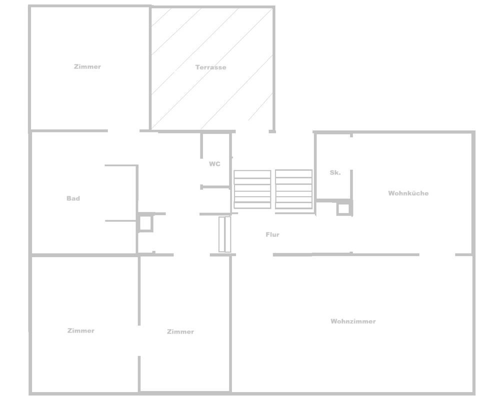
Zwei separate Eingänge sind vorhanden. Außerdem gibt es auf der Zwischenebene einen bzw. zwei Terrassen bzw Dachterrassen.
Obwohl das Gebäude über die Jahre in einem soliden Zustand gehalten wurde, sind altersbedingte Erneuerungen nötig.
Beispielsweise sind die Fenster teilweise einfach-verglast und die Elektro-Installationen entsprechen teils nicht mehr dem aktuellen Stand. Auch bei den beiden Bädern gibt es Erneuerungsbedarf.
Die Beheizung des Hauses erfolgt über eine Gaszentralheizung.
Im EG gibt es ein größeres Wohnzimmer, ein weiteres separates Zimmer, eine geräumige Wohnküche, ein Bad und einen Hauswirtschaftsraum, wo auch die Heizung untergebracht wurde.
Im OG befinden sich ebenfalls ein größeres Wohnzimmer, eine Wohnküche, 2 weitere separate Zimmer und ein Bad.
Nähere Informationen zum Angebot, sowie weitere Bilder und Skizzen zur Raumaufteilung erhalten Sie auf Anfrage.
Der angegebene Verkaufspreis versteht sich als Verhandlungsbasis.
Vermittlungsprovision:
Die gesamte Vermittlungsprovision beträgt inklusive Mehrwertsteuer 4,76 % vom Kaufpreis, ist nach Abschluss eines notariellen Kaufvertrages fällig und je zur Hälfte von Käufer- und Verkäufer zu zahlen, (jeweils also 2,38 % vom Kaufpreis)!
Bei Fragen zum Angebot, oder bei Interesse an einer Besichtigung freue ich mich auf Ihre Anfrage, gerne per Anruf, Mail, oder per WhatsApp.
Alle Angaben basieren ausschließlich auf den Informationen des Auftraggebers.
Wir übernehmen keine Gewähr für die Vollständigkeit, Richtigkeit und Aktualität dieser Angaben.


























