Reichlich Platz und gut gelegen, mit Werkstatt, Laden, Nebengebäude und Garten in Haina
Das geräumige und teilweise unterkellerte Wohnhaus wurde vor 1900 erbaut und bietet mit rund 240 m² Wohnfläche auf zwei Etagen, verschiedene Nutzungsmöglichkeiten. Ob zu Wohnzwecken, oder mit separatem Ladengeschäft, geräumigem Arbeitszimmer, oder separatem Büro. Hier sind verschiedene Nutzungsvarianten denkbar.
Zusätzliche Nutzfläche gibt es in dem Nebengebäude.
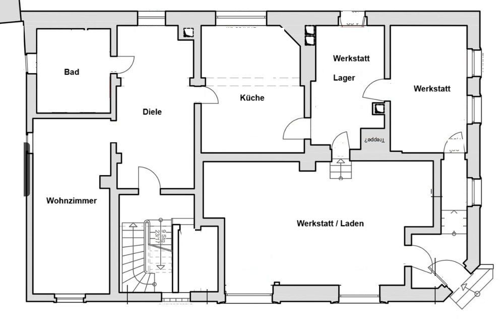
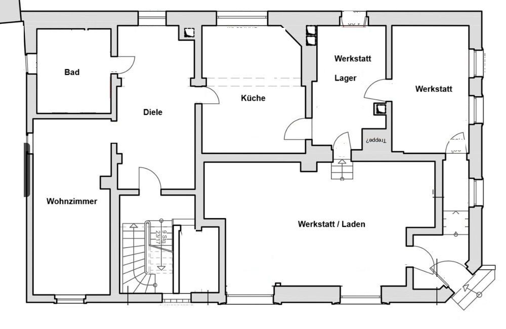
Die aktuelle Raumaufteilung entnehmen Sie bitte den Skizzen.
Erneuerungsbedarf ist sowohl bei dem Wohnhaus, als auch bei dem Nebengebäude dem Alter entsprechend vorhanden.
Die Beheizung erfolgte über eine ältere Ölzentralheizung.
Die Grundstücksgröße beträgt 1039 m².
Der Angebotspreis versteht sich als Verhandlungsbasis.
Ein Energieausweis ist nicht erforderlich wegen Denkmalschutz (Ensembleschutz).
Weitere Informationen zum Angebot, wie Grundrisse und Informationen zum Grundstück erhalten Sie auf Anfrage.
Sowohl die Käuferprovision, als auch die Verkäuferprovision beträgt inklusive Mehrwertsteuer, jeweils 2,98 % vom Kaufpreis und ist nach Abschluss eines notariellen Kaufvertrages fällig.
Bei Fragen zum Angebot, bei Interesse an einer Besichtigung, oder bei Interesse an weiteren Angeboten, rufen Sie mich am besten bitte gerne einfach an unter 06453 648 076 oder unter 0171 315 95 18.
Alle Angaben basieren ausschließlich auf den Informationen der Auftraggeber.
Eine Gewähr für die Vollständigkeit, Richtigkeit und Aktualität dieser Angaben wird nicht übernommen.








































