Denkmalgeschützter Vierseitenhof in Kirchhain Großseelheim
Nähere Informationen zum Denkmalschutz erhalten Sie von den jeweils zuständigen Behörden.
Zum Angebot gehören das Wohnhaus (Fachwerk) mit rund 220 bis 240 m² Wohnfläche und angrenzendem ehemaligem Nutzgarten, ein großes Scheunengebäude mit Scheunenanbau, Obstgarten und 2 Stallgebäude.
Das unterkellerte Fachwerkhaus mit auf drei Seiten verputzter Fachwerkfassade, wurde teilweise massiv unterfangen und kann als recht solide bezeichnet werden. Erneuerungsbedarf ist dem Alter entsprechend reichlich vorhanden.
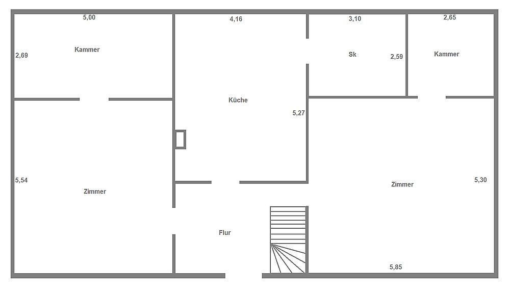
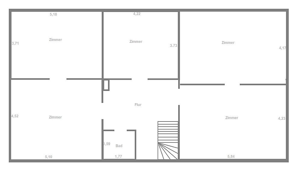
Die Raumaufteilung entnehmen Sie bitte den Skizzen.
Die Raumhöhe (Deckenhöhe) im EG beträgt jeweils etwa 254 cm.
Die Raumhöhe (Deckenhöhe) im OG beträgt jeweils etwa 240 cm.
Die Beheizung erfolgte bisher über eine Ölzentralheizung.
Die Grundstücksgröße beträgt 1.971 m²
Die Fachwerkscheune mit einer bebauten Fläche von ca. 260 m² wurde zusätzlich um einen etwa 140 m² großen Anbau erweitert. Der Anbau ist auf 2 Etagen nutzbar, also sowohl vom Hof aus, als auch zusätzlich über eine separate Zufahrt.
Die beiden Stallgebäude mit massivem Untergeschoss befinden sich ebenfalls in einem guten, soliden Zustand und haben insgesamt eine bebaute Fläche von mehr als 350 m².
Nähere Informationen zum Angebot, vor allem weitere Bilder von innen erhalten Sie auf Anfrage.
Der Angebotspreis versteht sich als Verhandlungsbasis.
Die Käuferprovision inkl. Mehrwertsteuer beträgt 1,8% vom Kaufpreis und ist nach Abschluss eines notariellen Kaufvertrages, von der Käuferseite zu zahlen. Die gleiche Summe trägt, nach den aktuellsten Regelungen zur Provisionsteilung, die Eigentümerseite.
Bei Fragen zum Angebot, oder bei Interesse an einer Besichtigung, rufen Sie mich am besten bitte gerne einfach an unter 06453 648 076 oder unter 0171 315 95 18.
Alle Angaben basieren ausschließlich auf den Informationen der Auftraggeber.
Eine Gewähr für die Vollständigkeit, Richtigkeit und Aktualität dieser Angaben wird nicht übernommen.








































































